J. Dürsteler & Co. AGZürcherstrasse 47 · CH-8620 Wetzikon · Tel. +41 44 933 60 70 · info@idewe.ch

J. Dürsteler & Co. AG
Zürcherstrasse 47
CH-8620 Wetzikon

+41 44 933 60 70

slider
Wohnen im grünen

Keller

WETZ Vermietungsdossier Haus8 Keller

Sockelgeschoss

WETZ Vermietungsdossier Haus8 Sockel

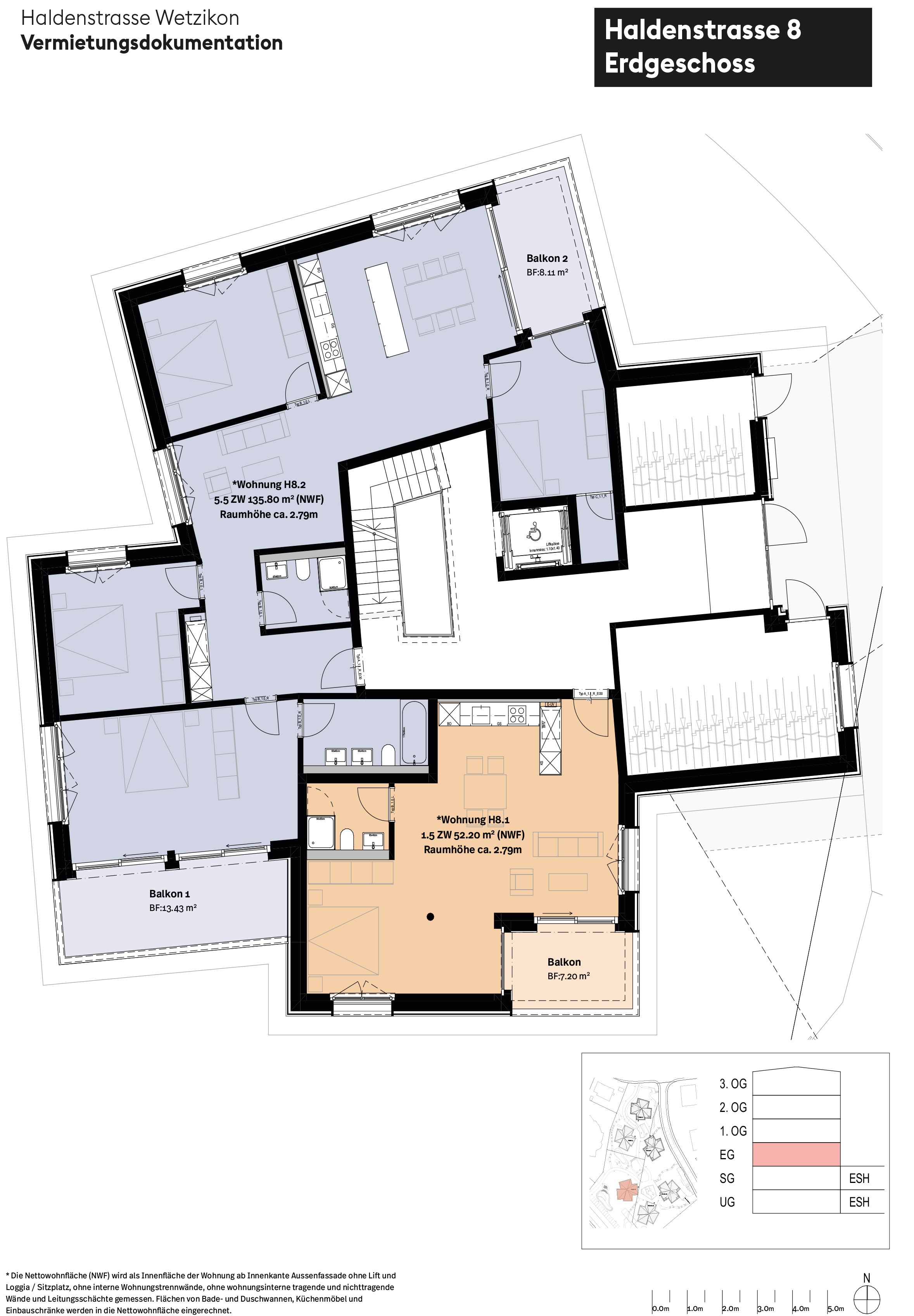
Erdgeschoss

WETZ Vermietungsdossier Haus8 Erdgeschoss

1. Obergeschoss

WETZ Vermietungsdossier Haus8 1 OG

2. Obergeschoss

WETZ Vermietungsdossier Haus8 2 OG

3. Obergeschoss

WETZ Vermietungsdossier Haus8 3 OG

Kontaktieren Sie uns

Vermietung:

Wuhrmann Immobilien & Verwaltungs GmbH
Emil-Staub-Strasse 4
8708 Männedorf

Tel. +41 (0) 44 541 49 49
halden-garten@wuhrmann-immo.ch